You've got questions, we've got answers
How to determine your price range
Everything you need to confidently buy your new home
What you need to know
Find trusted vendors in your area
Find utility information for your area
Send an email with a link to
107 Alliance Court, Tipton, IA 52772.
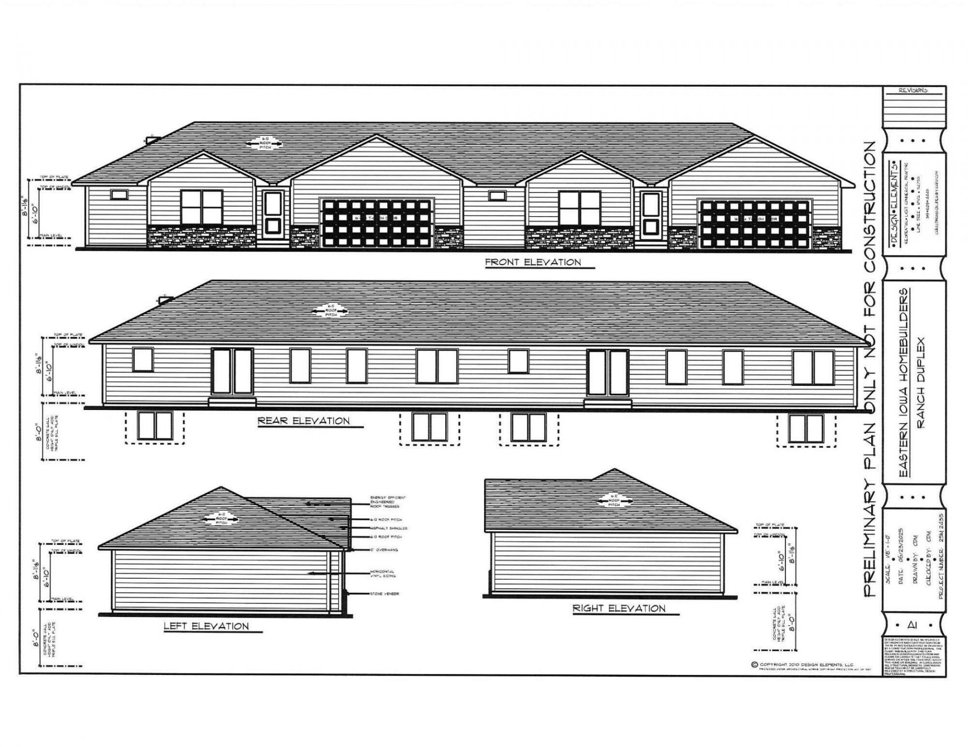
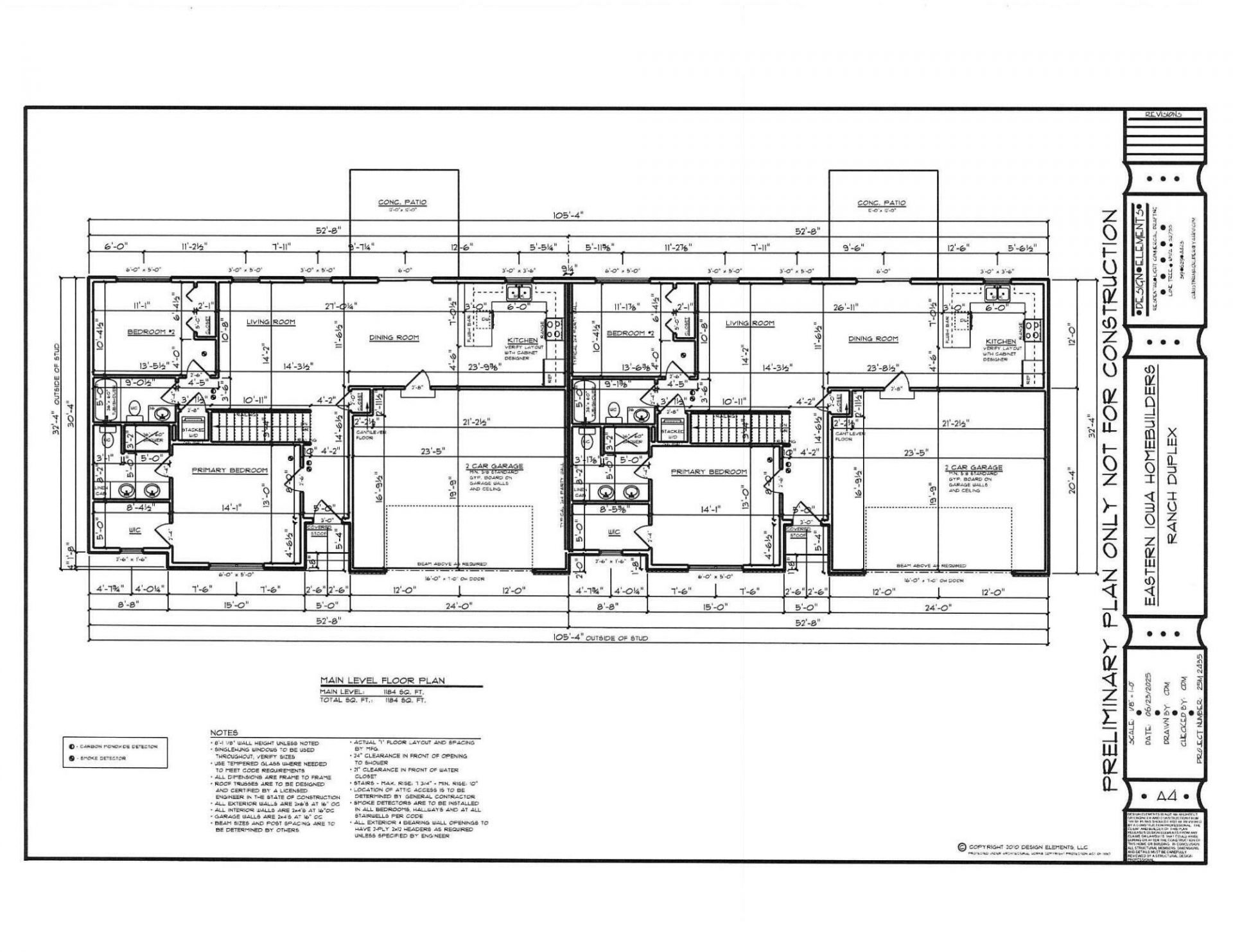
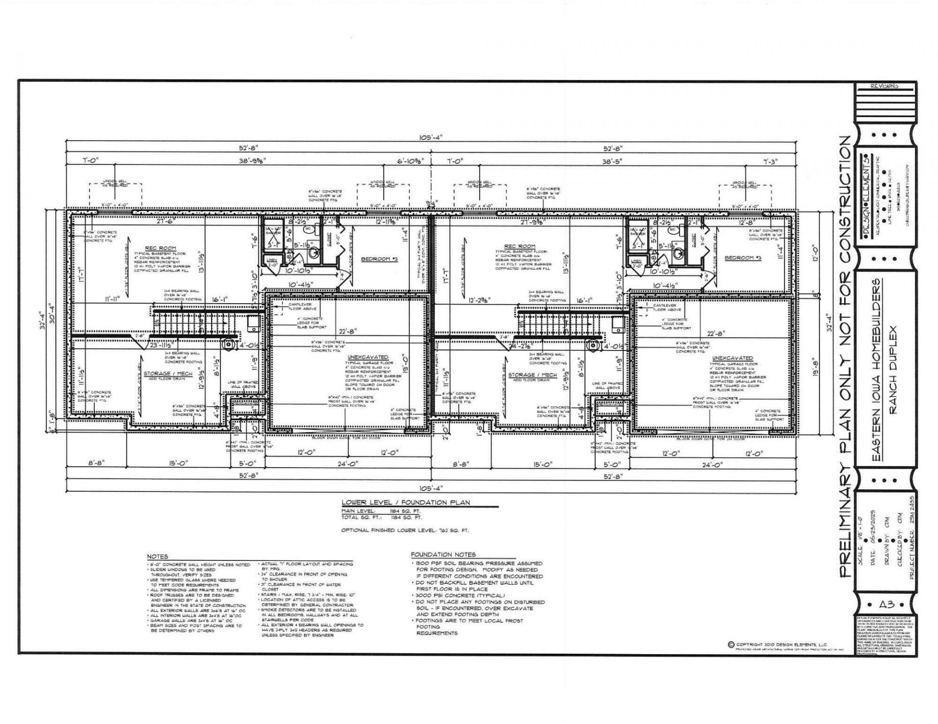
TO BE BUILT on Alliance Drive in Tipton this 3 bedroom 3 bathroom home has a total of 1,946 finished square feet, attached garage and your choice of finishes. This property qualifies for Tipton's Property Tax Abatement that includes no property taxes for 10 years. All of your amenities are on the main level and these will be constructed with an age in place concept.
MLS ID: 26-196
Shown By
Shown By
Contact an agent to learn more about
107 Alliance Court, Tipton, IA 52772.

Call or Click to get Pre-Approved!
563-441-1862
toll free 866-441-1862
Customize Your Rate
| Loan Type | 30 Year Fixed | FHA 30 Year Fixed | 15 Year Fixed |
| Purchase Price | $310,000 | $310,000 | $310,000 |
| Down Payment | $62,000 | $10,850 | $77,500 |
| Monthly Mortgage Amount | $1,467 | $1,825 | $1,884 |
| Taxes | $431 | $431 | $431 |
| Insurance | $100 | $100 | $100 |
| HOA/Dues/Fees | $0 | $0 | $0 |
| Monthly Mortage Insurance | $0 | $136 | $0 |
| Monthly Estimated Total | $1,998 | $2,492 | $2,415 |
Though it’s small in size, Tipton is known far and wide as a fun town with lots to do. It’s the site of the Cedar County Fairgrounds, the annual extravaganza taking place in summer. Next to the fairgrounds is the Cedar County Raceway, another place for community members to gather and be entertained. Tipton City Park is a popular place for recreation, thanks to sports fields, tennis courts, and an aquatic center with indoor and outdoor pools. Plus, there’s the Tipton Golf & Country Club, a highly rated 9-hole golf course on the southwest end of town, near Mathews Memorial Airport. Those willing to drive will find a plethora of beautiful natural areas along the Cedar River, such as Cedar Valley County Park and Rock Creek Island State Preserve.

Tipton real estate appeals to a wide array of price points and lifestyles. You’ll find meticulously maintained ranch-style homes, older fixer-uppers with tons of potential, and classic farm-style homes with thoughtful details and vintage touches. No matter what you’re looking for, you’ll undoubtedly find Tipton homes for sale that impress.
Reference the Tipton Neighborhood Guide below for up-to-date real estate market trends, nearby school profiles, community demographic information, and more.
No matter the reason for moving, Ruhl&Ruhl Realtors has plenty of real estate options and homes for sale in Tipton, Iowa for you to choose from. Continue browsing this page to see all houses for sale in Tipton, IA and if you need to do a little more research before buying, check out the pages below.
Nearest Ruhl&Ruhl Office
1075 Highway 1 West
Iowa City, IA 52246
Phone Number: (319) 339-8111